Appartement - à vendre

  • Réf. 7219546
  • Rue de La Belle Vue 58 - 6001 Marcinelle
180 000 €
PEB : C
  • 116 m²
  • 2
  • 1

Description

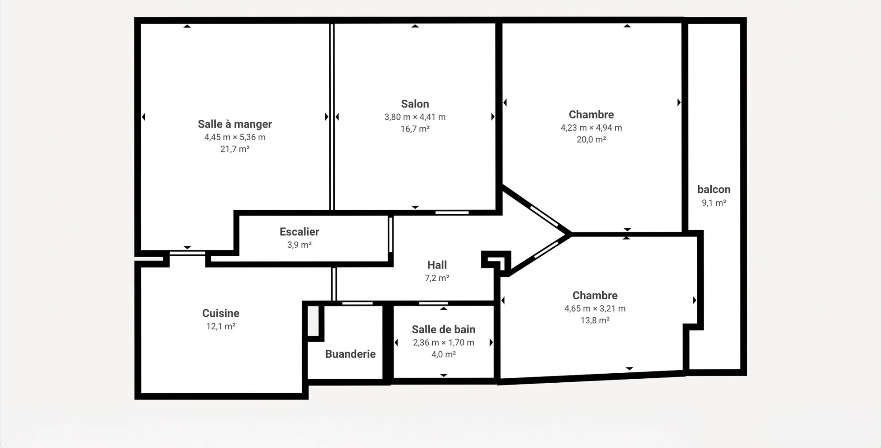
Actualimmo vous propose ce bel appartement de 2 chambres, idéalement situé à Marcinelle. Parfait pour un couple, une petite famille ou un investissement locatif, il bénéficie d’un emplacement idéal, proche de toutes les commodités : écoles, commerces, transports en commun et axes routiers. Ses 116m2 (selon PEB) se composent comme suit : appartement : salle à manger ( 22m2), salon (17m2), cuisine (12m2), salle de bain (4m2), buanderie (3M2),hall de jour (7M2) et 2 chambres (20M2 et 14M2). Extérieur : l'appartement dispose d'un balcon (9M2) et d'un garage. Commodités : raccordée à l'égout et au gaz de ville, chauffage central au gaz , châssis alu , volets (façade arriére) Revenu cadastral : 580 € PEB : C Le propriétaire se réserve le droit exclusif d'apprécier la hauteur et la qualité des offres. Les informations publiées sur ce site ont un caractère indicatif et non contractuel. Infos et visites sur RDV au 0483/33.58.98 - www.actualimmo.be - IPI 800 018 Vous vendez votre bien ? N'hésitez pas à nous contacter pour une expertise offerte et sans engagement.

Général

  • Référence 7219546
  • Catégorie Appartement
  • Meublé Non
  • Nombre de chambres 2
  • Nombre de salles de bain 1
  • Garage Oui
  • Terrasse Oui
  • Surface habitable 116 m²

Equipement de base

  • Cuisine Oui
  • Double vitrage Oui
  • Chauffage (Format/energie) gaz (chau. centr.)
  • Type de cuisine équipée
  • Sdb (Type) bain
  • Double vitrage (type) isol. thermique et acoustique
  • Parlophone Oui

En chiffres

  • Chambre 1 (surface) 20 m²
  • Chambre 2 (surface) 14 m²
  • Salle de séjour (surface) 22 m²
  • Cuisine (surface) 12 m²
  • Salle de bain 1 (surface) 4 m²

Équipements techniques

  • Châssis (Ouvertures) aluminium ou pvc

Caractéristiques Principales

  • Surface de terrasse 1 9 m²

Energie

  • Label PEB (Classe) C
  • PEB E-SPEC (kwh/m²/an) (Consommation énergétique) 239
  • E total (Kwh/an) 27616
  • PEB code unique (-) 20251122002796
  • PEB valide jusqu'au (validité) 22/11/2035
  • Date du PEB 22/11/2035
ACTUALIMMO LA LOUVIERE
Prendre contact pour le bien : 7219546

* Champs obligatoires

Sélection des points d'intérêts

Biens similaires

Préférences pour les cookies

La protection de vos données personnelles est importante pour nous. C’est pourquoi nous détaillons ci-dessous les différents services et fonctionnalités du site qui utilisent des cookies et nous vous laissons décider des cookies que vous souhaitez autoriser ou refuser.

Veuillez cependant noter que si vous bloquez certains types de cookies, cela pourrait impacter votre expérience de navigation sur notre site ainsi que les fonctionnalités disponibles.

Nous utilisons des cookies fonctionnels obligatoires pour assurer le bon fonctionnement du site. Ils sont, par exemple, nécessaires pour retrouver le résultat d’une recherche ou enregistrer le choix de la langue.

Certaines fonctionnalités, comme l’affichage de vidéos ou de cartes géographiques, sont assurées via des composants externes développés par des partenaires comme YouTube ou Google. Certains composants utilisent des cookies qui sont susceptibles de permettre à ces tiers de suivre le comportement des internautes afin, par exemple, de réaliser du ciblage publicitaire. L’activation de ces fonctionnalités et des cookies associés est donc soumis à votre consentement.